Andy Warhol Museum Exhibits
June 2019 - November 2024
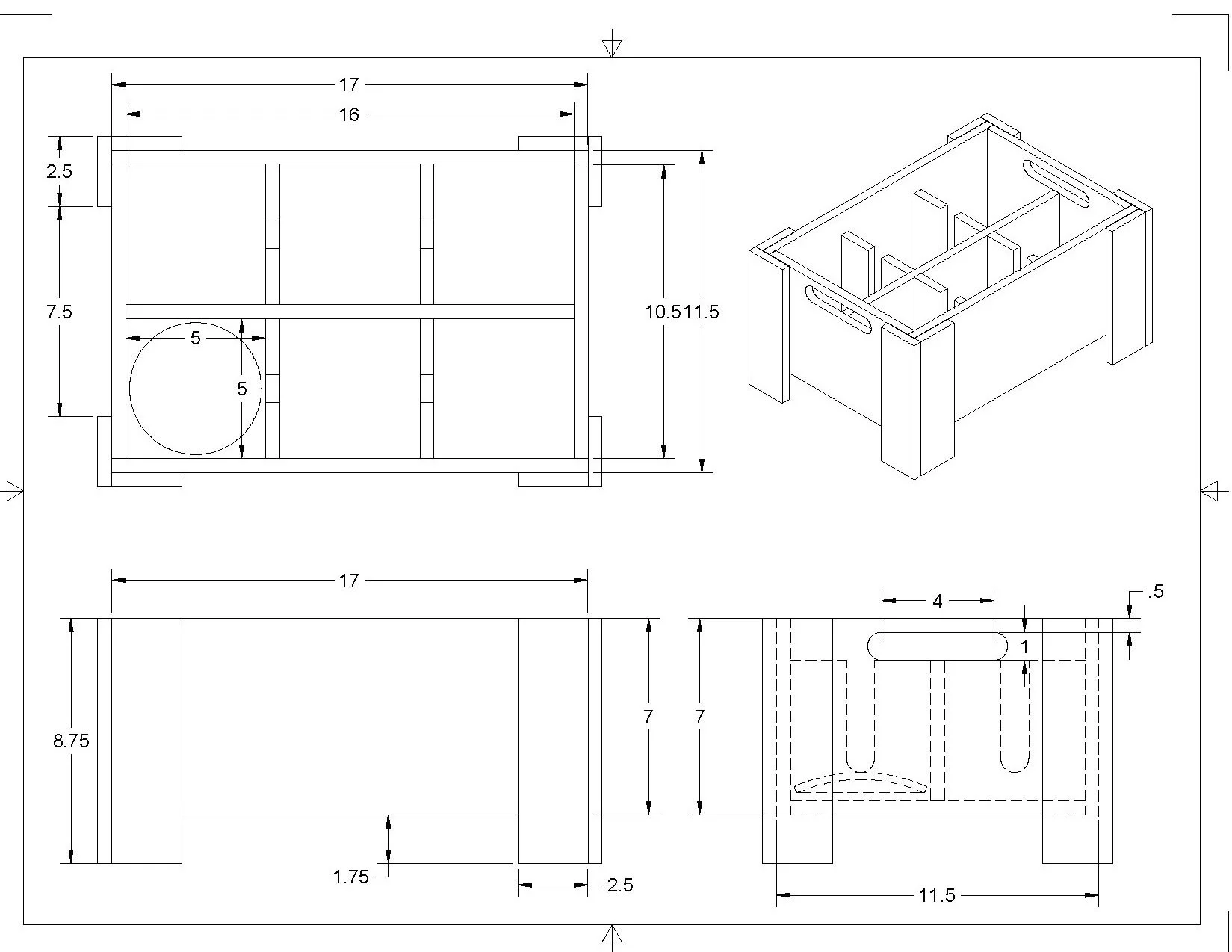
Fine Art Crate Construction
2019 - 2024
The Warhol Museum was fortunate to have facilities that allowed us to build our own crating. Simple woodworking tools and techniques allowed us to build functional and durable crates that would last for dozens of domestic and international journeys. The crates were fitted with draw-latches allowing them to be operated without additional tooling, and their durability kept them in service for decades with only minor refurbishment.
Crates were constructed for all manor of contents; paintings on canvas, framed works on paper, rolled paintings, ephemera from the archives, audio visual equipment such as lighting fixtures, and even sculptural works requiring highly specialized interiors.
KAWS + WARHOL
Spring 2024
In the Spring of 2024, the Warhol Museum featured work from popular contemporary artist KAWS (Brian Donnelly). The museum exhibited a number of larger-than-life steel sculptures of some of his famous characters, Companion, Chum, and BFF, along with a dozen paintings and prints. The exhibit required the safe assembly and handling of these monstrous sculptures along with the construction of robust plinths, pedestals and casework built right into the walls of the gallery. In a truly impressive feat, our team installed over 1500 real cereal boxes (containing real cereal), covering the walls of a gallery to a height of more than 17 feet. I personally constructed a number of platforms, installed mirrored casework ‘niches’, and assisted in rigging and forklift operation for the assembly of the largest sculptures. Careful planning and precise measurement were critical, as the limited ceiling heights in the gallery made the display of the taller sculptures very challenging.
Andy Warhol’s Social Network
Fall 2022
The Warhol Museum’s 2022 Fall Exhibit, Andy Warhol’s Social Network, featured a large number of Interview magazine covers.
Xiaoxi Chen (https://xiaoxi.space/) created the design for the space, and the fabrication team at the Warhol built the casework. I crafted the label rails, rear support rails and the vertical supports that hold up the vitrines. Other Art Preparators and contractors created the casework offsite.
It was critical for us to coordinate so that the final install could come together without issue. As the designs were adjusted for ease of fabrication, I kept an updated 3D model and provided sample lengths of rail so that fitment could be repeatedly tested as needed.
My working drawings for the fabrication of these cases are pictured below including layout for efficient cutting of sheet goods (Critical for building an accurate BOM)
Paola Pivi: I Want It All
Spring 2022
The Warhol Museum’s 2022 Spring Exhibit, Paola Pivi: I Want It All, was adorned with overwhelming multiples, bright colors and works hanging from the ceilings.
For this exhibit the large hanging mattresses would be interacted with by the visiting public so the solution to hang them needed to be particularly robust.
The staff at the museum worked closely with Paola Pivi’s team and the artist herself to realize these works. Responsibilities were broken up among preperators. I focused primarily on suspended works. While my colleagues tackled the hundreds of shoes that adorned the walls.
Hardware Proposal for Mattress Hanging (Submitted to an engineering firm for review)
Initial rigging proposal (later modified) intended to prevent mattresses from swaying or becoming a pendulum while hanging. Mattresses were not yet fabricated when these drafts were first created
Artwork Conservation ‘Bridge’
Winter 2022
Warhol’s largest works could span up to 30 foot in length and were often stored un-stretched and rolled up on large tubes. When these works needed regular analysis or conservation treatments preformed on them it could be difficult to find space in the museum to preform that work. Stretching a painting that large could take many hours and require a half dozen members of the exhibitions and conservation staff.
In order to allow for more independence while working on large paintings the conservator at the Andy Warhol Museum Rikke Foulke asked me about the possibility of constructing a device to help her access the hard to reach portions of the larger paintings.
Because a large exhibit had recently been de-installed we had a large supply of irregularly shaped plywood that allowed me to build this mobile truss-bridge span on a very tight budget. It became a valuable tool of the conservation department.
Lighting Fixture Lens Storage
Fall 2019
Daily tasks at the Warhol Museum included managing and maintaining the track lighting system in the gallery and exhibition spaces. This could be anything from changing bulbs to ensuring light level adherence within conservation guidelines. When new exhibits were installed or works were rotated out light fixtures would regularly need new bulbs or new lenses. Early in my time at the museum I proposed and then fabricated a storage system that would better protect the fragile glass lenses that were required by the existing track lighting system.